End-Terrace Property
Church Street, Gwynedd, LL41 3HB
- 0
Key features
Guide Price: *
£90,000
Fees apply
Buyer's fee:£3,600
All fees include VAT at 20%
Holding Deposit: *£1,400
*Only charged if you are the successful buyer and goes towards the purchase price
Auction Type:
† Traditional
Start price:
£80,000Bid history
0 bidsOnline traditional Auction (Unless Sold or Withdrawn Prior). Proposed online bidding end 26th February 2026, end time 1:45pm
DESCRIPTION:
Former shop now offering accommodation with UPVC double glazing and Gas fired central heating. In our view, could be a good opportunity for a first time buyer or and investor.
Situated in the heart of Blaenau Ffestiniog, this end of terrace house is in our view, a rare find in its price category. The property features three bedrooms plus Attic room and three bathrooms, providing ample space for families or those seeking additional room for guests. With freehold tenure, this home presents a great opportunity for long-term ownership.
The house is equipped with gas central heating and UPVC double glazing.
Blaenau Ffestiniog is known for its strong community feel and access to local amenities. The area is surrounded by scenic landscapes, providing opportunities for outdoor activities. With the property priced to sell, don't miss out on this chance to own a home possible as your first time buy or investment.
DIRECTIONS:
Get on N Wales Expy/A55 in Gwynedd from Treborth Rd/A487 for 4 minutes (1.7 mi) Head towards Telford Rd/A545. Exit the roundabout onto A5 for 0.4 miles. At Antelope Roundabout, take the 3rd exit onto Treborth Rd/A487 for 1.0 mile. At Treborth Interchange, take the 3rd exit onto the A55 slip road to Betws-y-Coed/A5/Conwy for 0.3 miles. Follow A5 to High St/A470 in Blaenau Ffestiniog.
MATERIAL INFORMATON:
Part A material information as required by Trading Standards:
1. Tenure: We are informed at the point of commencement of marketing that the property is Freehold.
Please verify by checking the legal pack when ready and prior to bidding to purchase.
2. Council Tax (England, Wales & Scotland)
• Council Tax Band: A
3. Price Guide:
The guide prices are the parameters which we believe the lot may achieve, although by the very nature of entries the actual sale prices may be higher or lower depending upon demand and popularity of the lot at the actual auction. Guide prices are published in good faith and may change at any time during the marketing campaign.
Material Information Part B
1. Physical characteristics of the property:
a) Property type: End terrace property
b) Construction type: As auctioneers or marketing agents we or the joint agents do not undertake a survey. We are not qualified to specify exact construction of buildings, however we may provide an assumption/comment if we are informed or believe the property not to be standard construction for its type and area. Bidders should ensure they verify for themselves the construction prior to bidding and a commitment to purchase.
(Some examples of different construction types include prefabricated buildings and non-traditional building methods such as wattle and daub, cob, pre-cast and cast in situ concrete, and timber or metal frame construction).
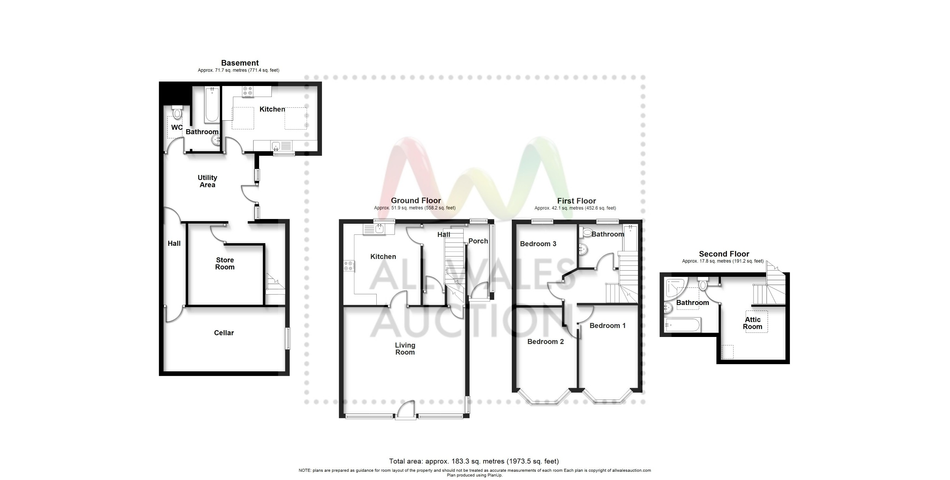
c) Number and type of rooms
We understand the accommodation comprises:
Basement – Cellar, Store Room, Hall, Utility Area, Kitchen, Bathroom, WC
Ground Floor- Living Room, Kitchen, Hall, Porch
First Floor- Bedrooms One, Two & Three, Bathroom
Second Floor – Attic Room, Bathroom
2. Utilities:
• Source/s of heating (including if applicable on some lots any communal heating facilities): Gas
• Primary source of electricity supply Mains
• Primary source of water supply Mains
• Primary arrangement for sewerage TBC
Viewing 01248 75 39 39 - Please phone us to make an appointment.
We are open from 9am to 5pm Monday to Friday, and 9am to 4pm Saturdays.
Please Note - Any interested bidders MUST refer to our auction terms of sale available on the online listing at: www.allwalesauction.com
Some helpful Guidelines:
Pre-Auction Offers – Not all lots offered will consider pre auction offers.
Offers must be submitted to us in writing and will only be considered if the lot has been viewed and the legal documentation inspected. Pre-auction bids are on the basis of an immediate exchange of auction contracts upon acceptance by the seller, with the buyer providing a full 10% deposit AND the administration fee. Any offer will be assumed to be your best and final offer and we cannot guarantee that you will be invited to increase your bid in the event of an alternative, satisfactory offer being received prior to exchange. Our clients have agreed that only pre-auction offers SUBSTANTIALLY above the top guide price figure will be submitted for their consideration.
Local Authority: Gwynedd County Council
Legal Packs: To register for legal packs please visit the View Lots and Register section of our website www.tppuk.com/live-auction
General Information - Prior to making an appointment to view, we strongly recommend that you discuss any particular points which may be likely to affect your interest in the property with a member of staff in order that you do not make a wasted journey.
Note to customers:
All Wales Auction is auction department trading name of Williams & Goodwin The Property People Ltd.
Important Notice - YOU MUST REFER TO THE TERMS AND CONDITIONS
Williams & Goodwin The Property People/All Wales Auction and their clients give notice that these particulars have been prepared in good faith to give an overall view of the property. They do not form any part of an offer or contract to the purchaser or any third party, and must not be relied upon as statements or representations of fact. Purchasers must rely on their own enquiries by inspection or otherwise on all matters including planning or other consents. Any areas, floor plans, measurements or distances referred to are given as a guide only and are not precise. Photographs are not necessarily comprehensive or current; no assumption should be made that any contents shown are included in the sale nor parts of the property that have not been photographed. We have not tested any services or equipment and nothing in these particulars should be deemed to be a statement that they are in good working order nor that the property is in good structural condition.
MONEY LAUNDERING REGULATIONS 2003 intending purchasers will be asked to produce identification and proof of financial status when registering to bid.
The Agent nor auctioneer have not tested any apparatus, equipment, fixtures and fittings or services and so cannot verify that they are in working order or fit for the purpose. A Buyer is advised to obtain verification from their Solicitor or Surveyor. References to the Tenure of a Property are based on information supplied by the Seller at the time of instruction and should be confirmed within the legal pack. A Buyer is advised to obtain verification from their Solicitor.
We have taken every precaution to ensure that these details are accurate and not misleading. If there is any point which is of material importance to you, please contact us and we will provide any information you require. The mention of any appliances and services within these details does not imply that they are in full and efficient working order. These details must therefore be taken the initial guide only and bidders should check for Addendums on the online listing of this lot prior to bidding.
See Auction terms and special conditions prior to bidding & ADDENDUM BELOW
NOTE: Details may be amended and documents added/changed, bidders need to ensure they check all documents and also check for updates throughout the auction.
Online traditional Auction (Unless Sold or Withdrawn Prior). Proposed online bidding end 26th February 2026, end time 1:45pm
DESCRIPTION:
Former shop now offering accommodation with UPVC double glazing and Gas fired central heating. In our view, could be a good opportunity for a first time buyer or and investor.
Situated in the heart of Blaenau Ffestiniog, this end of terrace house is in our view, a rare find in its price category. The property features three bedrooms plus Attic room and three bathrooms, providing ample space for families or those seeking additional room for guests. With freehold tenure, this home presents a great opportunity for long-term ownership.
The house is equipped with gas central heating and UPVC double glazing.
Blaenau Ffestiniog is known for its strong community feel and access to local amenities. The area is surrounded by scenic landscapes, providing opportunities for outdoor activities. With the property priced to sell, don't miss out on this chance to own a home possible as your first time buy or investment.
DIRECTIONS:
Get on N Wales Expy/A55 in Gwynedd from Treborth Rd/A487 for 4 minutes (1.7 mi) Head towards Telford Rd/A545. Exit the roundabout onto A5 for 0.4 miles. At Antelope Roundabout, take the 3rd exit onto Treborth Rd/A487 for 1.0 mile. At Treborth Interchange, take the 3rd exit onto the A55 slip road to Betws-y-Coed/A5/Conwy for 0.3 miles. Follow A5 to High St/A470 in Blaenau Ffestiniog.
MATERIAL INFORMATON:
Part A material information as required by Trading Standards:
1. Tenure: We are informed at the point of commencement of marketing that the property is Freehold.
Please verify by checking the legal pack when ready and prior to bidding to purchase.
2. Council Tax (England, Wales & Scotland)
• Council Tax Band: A
3. Price Guide:
The guide prices are the parameters which we believe the lot may achieve, although by the very nature of entries the actual sale prices may be higher or lower depending upon demand and popularity of the lot at the actual auction. Guide prices are published in good faith and may change at any time during the marketing campaign.
Material Information Part B
1. Physical characteristics of the property:
a) Property type: End terrace property
b) Construction type: As auctioneers or marketing agents we or the joint agents do not undertake a survey. We are not qualified to specify exact construction of buildings, however we may provide an assumption/comment if we are informed or believe the property not to be standard construction for its type and area. Bidders should ensure they verify for themselves the construction prior to bidding and a commitment to purchase.
(Some examples of different construction types include prefabricated buildings and non-traditional building methods such as wattle and daub, cob, pre-cast and cast in situ concrete, and timber or metal frame construction).
c) Number and type of rooms
We understand the accommodation comprises:
Basement – Cellar, Store Room, Hall, Utility Area, Kitchen, Bathroom, WC
Ground Floor- Living Room, Kitchen, Hall, Porch
First Floor- Bedrooms One, Two & Three, Bathroom
Second Floor – Attic Room, Bathroom
2. Utilities:
• Source/s of heating (including if applicable on some lots any communal heating facilities): Gas
• Primary source of electricity supply Mains
• Primary source of water supply Mains
• Primary arrangement for sewerage TBC
Viewing 01248 75 39 39 - Please phone us to make an appointment.
We are open from 9am to 5pm Monday to Friday, and 9am to 4pm Saturdays.
Please Note - Any interested bidders MUST refer to our auction terms of sale available on the online listing at: www.allwalesauction.com
Some helpful Guidelines:
Pre-Auction Offers – Not all lots offered will consider pre auction offers.
Offers must be submitted to us in writing and will only be considered if the lot has been viewed and the legal documentation inspected. Pre-auction bids are on the basis of an immediate exchange of auction contracts upon acceptance by the seller, with the buyer providing a full 10% deposit AND the administration fee. Any offer will be assumed to be your best and final offer and we cannot guarantee that you will be invited to increase your bid in the event of an alternative, satisfactory offer being received prior to exchange. Our clients have agreed that only pre-auction offers SUBSTANTIALLY above the top guide price figure will be submitted for their consideration.
Local Authority: Gwynedd County Council
Legal Packs: To register for legal packs please visit the View Lots and Register section of our website www.tppuk.com/live-auction
General Information - Prior to making an appointment to view, we strongly recommend that you discuss any particular points which may be likely to affect your interest in the property with a member of staff in order that you do not make a wasted journey.
Note to customers:
All Wales Auction is auction department trading name of Williams & Goodwin The Property People Ltd.
Important Notice - YOU MUST REFER TO THE TERMS AND CONDITIONS
Williams & Goodwin The Property People/All Wales Auction and their clients give notice that these particulars have been prepared in good faith to give an overall view of the property. They do not form any part of an offer or contract to the purchaser or any third party, and must not be relied upon as statements or representations of fact. Purchasers must rely on their own enquiries by inspection or otherwise on all matters including planning or other consents. Any areas, floor plans, measurements or distances referred to are given as a guide only and are not precise. Photographs are not necessarily comprehensive or current; no assumption should be made that any contents shown are included in the sale nor parts of the property that have not been photographed. We have not tested any services or equipment and nothing in these particulars should be deemed to be a statement that they are in good working order nor that the property is in good structural condition.
MONEY LAUNDERING REGULATIONS 2003 intending purchasers will be asked to produce identification and proof of financial status when registering to bid.
The Agent nor auctioneer have not tested any apparatus, equipment, fixtures and fittings or services and so cannot verify that they are in working order or fit for the purpose. A Buyer is advised to obtain verification from their Solicitor or Surveyor. References to the Tenure of a Property are based on information supplied by the Seller at the time of instruction and should be confirmed within the legal pack. A Buyer is advised to obtain verification from their Solicitor.
We have taken every precaution to ensure that these details are accurate and not misleading. If there is any point which is of material importance to you, please contact us and we will provide any information you require. The mention of any appliances and services within these details does not imply that they are in full and efficient working order. These details must therefore be taken the initial guide only and bidders should check for Addendums on the online listing of this lot prior to bidding.
See Auction terms and special conditions prior to bidding & ADDENDUM BELOW
NOTE: Details may be amended and documents added/changed, bidders need to ensure they check all documents and also check for updates throughout the auction.
Summary
- Lot number
- 294
- Property type
- Terraced
- Tenure
- Freehold
- Bedrooms
- 4
- Bathrooms
- 3
- Council tax band
- A
Guide Price: *
£90,000
Fees apply
Buyer's fee:£3,600
All fees include VAT at 20%
Holding Deposit: *£1,400
*Only charged if you are the successful buyer and goes towards the purchase price
Auction Type:
† Traditional
Start price:
£80,000Bid history
0 bidsSummary
- Lot number
- 294
- Property type
- Terraced
- Tenure
- Freehold
- Bedrooms
- 4
- Bathrooms
- 3
- Council tax band
- A
This property is being sold by:

Williams & Goodwin The Property People Ltd
01248 75 39 39
21-23 Church Street, Llangefni, Ynys Môn, LL77 7DU
†Traditional auction
Exchange occurs at the end of the auction. This means that if the reserve is met or exceeded and the auction timer reaches zero, the successful bidder is legally obliged to pay the purchase price and the seller will be legally obliged to sell the property. To ensure that the successful bidder proceeds, the buyer is automatically charged a holding deposit, which is held in a secure client account, pursuant to the terms of a holding deposit agreement.
* Pricing Information
The Guide Price amount specified is an indication of each seller's minimum expectation. It is not necessarily the amount at which the property will sell. Each property will be offered subject to a Reserve (a figure below which the property will not be sold) which we expect will be set no more than 10% above the Guide Price amount.
Bamboo Proptech and Williams & Goodwin / All Wales Auction shall not be liable for any inaccuracies in the fees stated on this description page, in the bidding confirmation pop up or in the particulars. Buyers should check the contents of the legal pack and special conditions for accurate information on fees. Where there is a conflict between the fees stated in the particulars, the bid information box above or the bidding confirmation pop up and the contents of the legal pack, the contents of the legal pack shall prevail.
Stamp Duty Land Tax or Land and Buildings Transaction Tax may also apply in some circumstances.
Refreshing the Page
To make sure that you are seeing the latest information for the property, we recommend you refresh the page. This ensures you're seeing live information and not stored (cached) data. If the page disconnects from the Internet, refreshing the page will show the latest information.
Disclaimer
All information relating to this property, including descriptions, pictures and other related information has been provided by Williams & Goodwin / All Wales Auction. All legal documents in relation to this property have been provided by the Vendor's solicitor. Neither Bamboo Proptech or any individual in employment with Bamboo Proptech makes any warranty as to the accuracy or completeness of any of the property information.
These particulars do not form part of any contract or offer. Buyers should not rely on them as statements of representation and should check that the information is correct by inspection or otherwise. Where there is a conflict between the contents of the legal documents and these particulars, the information contained in the legal documents shall prevail.
Pursuant to the Auctioneer Act 1845, this auction is being conducted by the auctioneer stated above. All participants in this online auction shall note that both the Auctions (Bidding Agreements) Act 1927 and 1969 shall apply.


